Mặt bằng và Thiết kế các tầng mẫu nhà The Spring Plus
22 Tháng 5, 2021
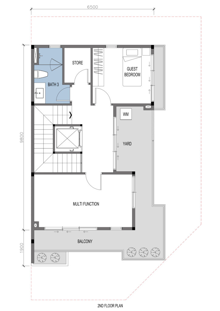
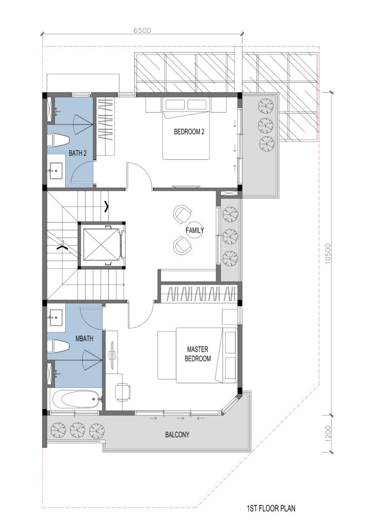
The Spring+ hay The Spring Plus là phiên bản nâng cấp của The Spring nằm trong khu đô thị ID Junction, với diện tích đất tiêu chuẩn 8m x 15m, kích thước xây dựng 6,5m x 10,5m. Mẫu nhà này có diện tích quy hoạch riêng để lắp đặt thang máy. Tất cả các căn đều ưu tiên góc nhìn hướng về cảnh quan và các tiện ích nhằm mang đến gia chủ những phút giây thư giãn nhẹ nhàng.
Diện tích đất tiêu chuẩn: 8m x 15m
Diện tích xây dựng: 6,5m x 10,5m x 3 tầng

Mặt bằng The Spring Plus
Thiết kế các tầng mẫu nhà The Spring Plus

