Mặt bằng và Thiết kế các tầng mẫu nhà The Infinity
22 Tháng 5, 2021
The Infinity như tên gọi của mình, Infinity chào đón chủ nhân bằng tầm nhìn không giới hạn, trải rộng đến mặt hồ trung tâm và công viên tiện ích. Đây là phân khu nằm trong khu đô thị ID Junction tại Long Thành.
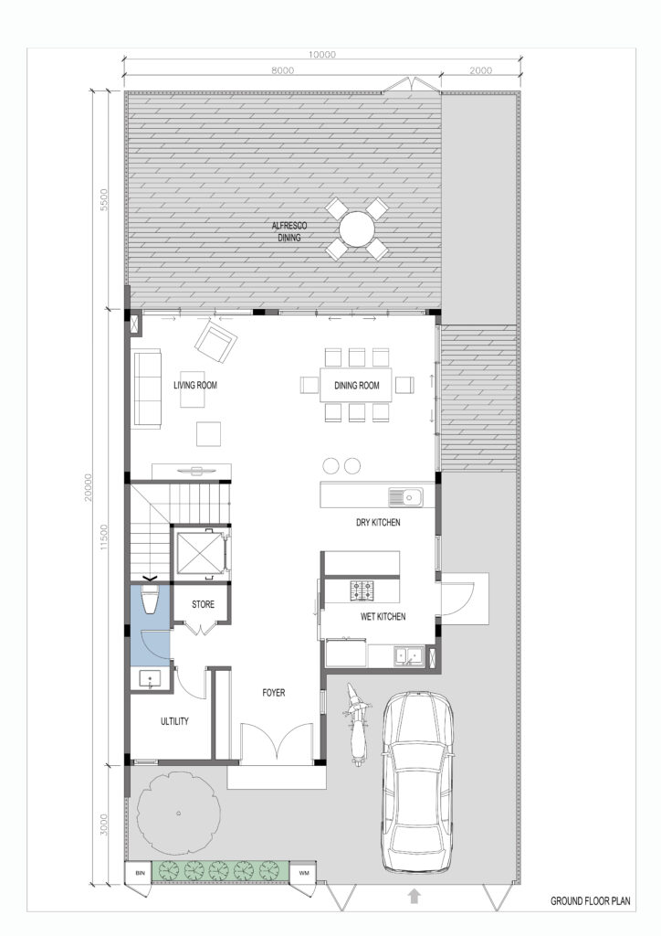
Diện tích đất tiêu chuẩn: 10m x 20m
Diện tích xây dựng: 8,0m x 11,5m x 3 tầng

Mặt bằng The Infinity
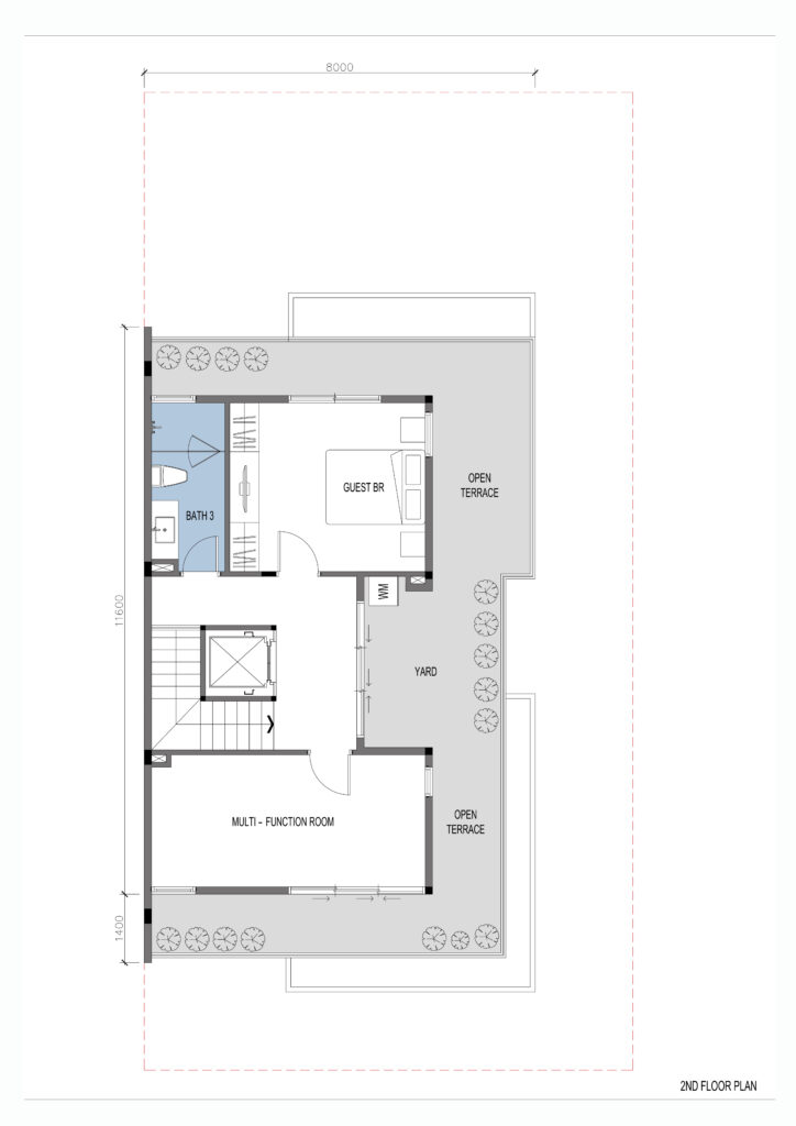
Thiết kế các tầng mẫu nhà The Infinity




Xem thêm thông tin dự án ID Junction: https://junction.com.vn/
