Mặt bằng và Thiết kế các tầng mẫu nhà The Bliss
22 Tháng 5, 2021
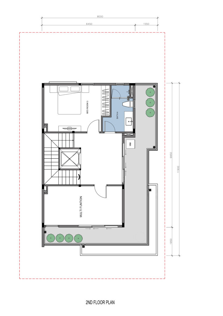
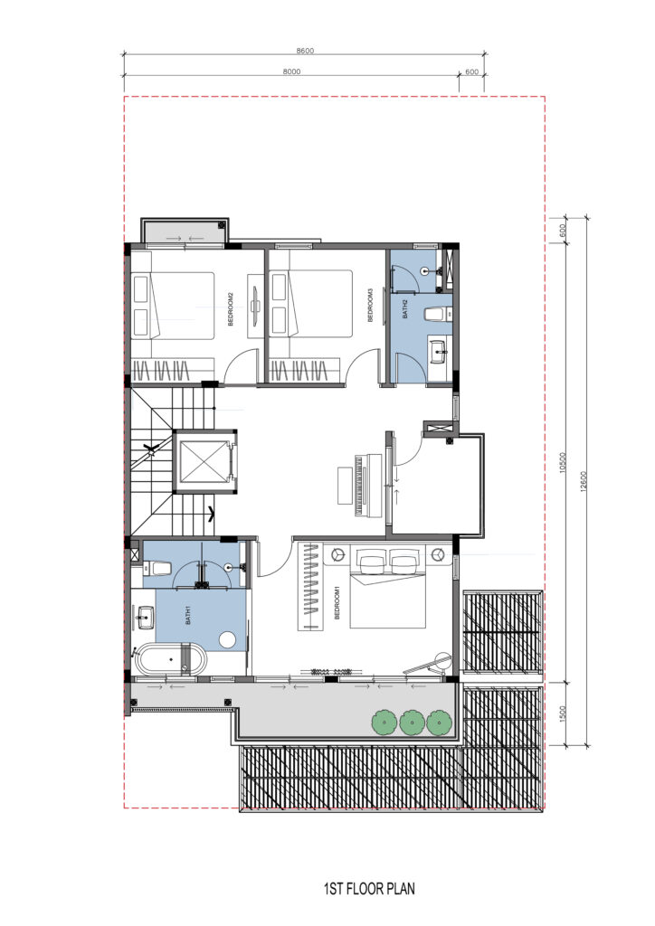
The Bliss là các căn đều có lưng hướng vườn cảnh quan, sân chơi trẻ em, diện tích đất tiêu chuẩn 10m x 17m, kích thước xây dựng 8m x 10,5m. Thiết kế theo không gian biệt thự với mái cổ điển và hàng hiên đón gió.
Diện tích đất tiêu chuẩn: 10m x 17m
Diện tích xây dựng: 8,0m x 10,5m x 3 tầng

Mặt bằng phân lô The Bliss
Thiết kế mẫu nhà The Bliss

Xem thêm thông tin dự án ID Junction: https://junction.com.vn/
