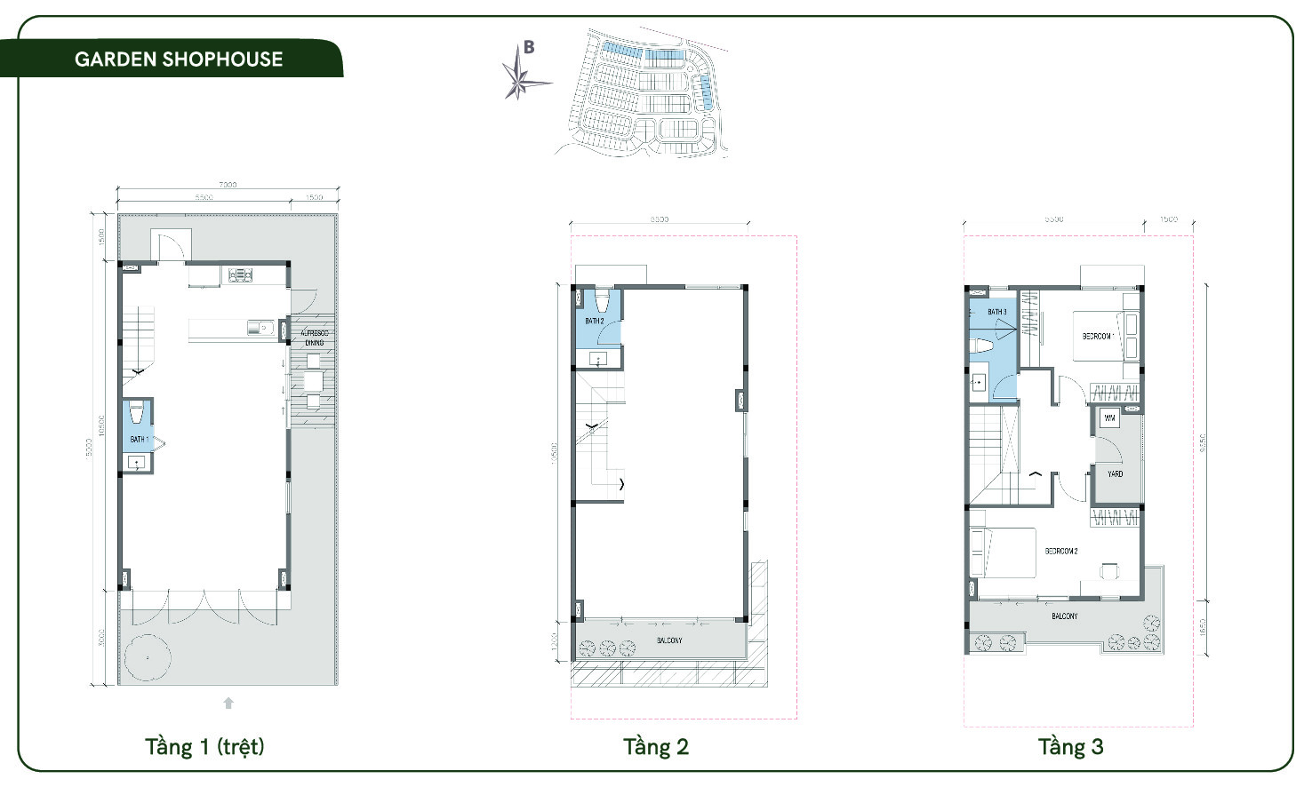
Mặt bằng và Thiết kế các tầng mẫu nhà Garden Shophouse
22 Tháng 5, 2021
Garden Shophouse – các căn Shophouse vườn nằm bên trong khu đô thị ID Junction, là khái niệm mới mẻ lần đầu tiên được giới thiệu trên thị trường. Mặt tiền các căn hướng đường song hành và khu thể thao phức hợp. Thiết kế các căn đảm bảo một không gian thuận tiện cho việc kinh doanh, bao bọc trong những mảng vườn xanh mát.
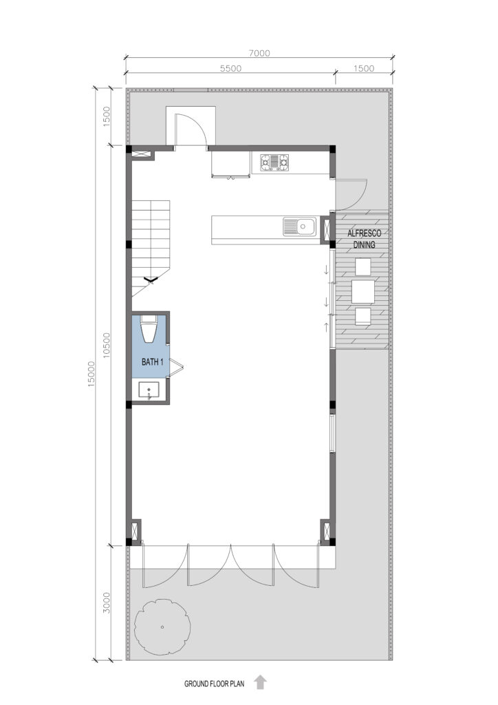
Diện tích đất tiêu chuẩn: 7m x 15m
Diện tích xây dựng: 5,5m x 10,5m x 3 tầng
Xem thêm thông tin dự án ID Junction tại Long Thành: https://junction.com.vn/

Mặt bằng phân khu Garden Shophouse
“Các bản vẽ có thể không theo chính xác tỷ lệ. Hình ảnh và bố trí nội thất mang tính chất minh họa. Dù rất cẩn trọng trong việc thực hiện các nội dung, chủ đầu tư sẽ không chịu trách nhiệm đối với các thay đổi do yêu cầu của cơ quan chức năng”.
Thiết kế các tầng mẫu nhà Garden Shophouse

